December 2024

#L240013 Unique Barndo!

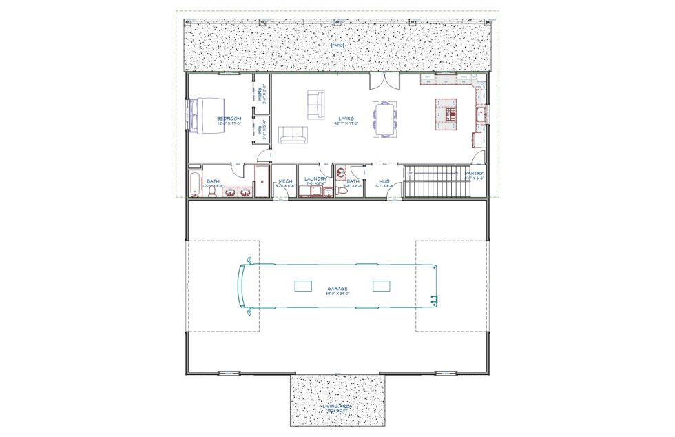
An off-grid mansion! This barndominium boasts 3,809sqft of spacious living, with 2,070sqft of shop space. Clad with Ox-Engineered Thermoply and adorned in TruLog metal lap siding; it is the perfect blend between traditional and contemporary design. Inside you’ll find a luxurious primary suite downstairs, accompanied by 2 additional full suites upstairs. An additional half bath lays tucked away off the mudroom, so you don’t track dirt in the house when nature calls in the middle of a project! The icing on this slice of paradise is the pull-through garage. Perfect for your campers, tractors, and project cars!

 

Image Gallery

Building Kit Inclusions:

  • 2×6 STURDI-LOK® Wall Panels (includes: header, lag screws, vtp, cn)
  • 2’ O.C Trusses (includes: 5/8” osb sheathing, underlayment, ice/water shield, hurricane clips, stabilizers, roll block, bracing)
  • OX-Engineered Thermoply (includes: moisture barrier, seam tape, flashing tape)
  • Rough Floor System-2nd story (includes: floor truss, ¾” OSB T&G, subfloor adhesive)
  • DF Rough Sawn Post & Beam 8×8/8×12
  • Windows
  • Fiberglass Exterior Doors
  • Metal Delta Max -roof/trim/soffit/patio ceiling
  • 26ga TruLog Lap Siding
  • Sliding Barn Door 16’x14’
  • Overhead Door Openings: 2ea 18’x14’ (Doors not included)
  • Full set of plans (layout, floor plan, elevations, section, energy conservation, w/d takeoff, roof/truss plans, floor system design, 3d view, anchor layout)
  • Engineered Structural Stamp (soil report required)