March 2024

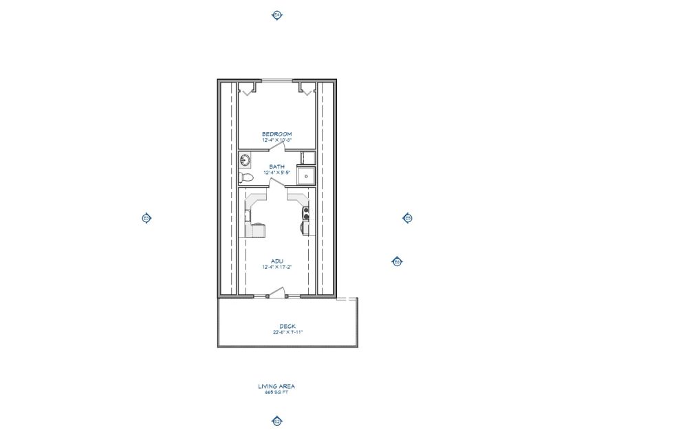
L140964: ADU with Garage! 1BR/1BA

Whether you need it for yourself or rent it for extra income, this ADU with a garage is the perfect option. 434sqft of living space with 1bdrm/1ba, and a 2car garage. Check your local municipalities to find out if you can receive an incentive for an ADU (accessory dwelling unit). Maintenance free metal Lap siding included!

 

Image Gallery

Building Kit Inclusions:

  • 2×6 STURDI-LOK® Wall Panels (includes: header, sill seal, lag screws, vtp, cn,)
  • 7/16” OSB and house wrap
  • 2′ O.C. Attic Roof Trusses, 8/12pitch, 18” overhang 30#snow (includes: 5/8″osb, synthetic underlayment, hurricane clips, stabilizers, roll blocking, bracing)
  • Post & Beam for deck (includes: base caps, anchor screw, screws for top connections)
  • Decking & Stair material  (railing by others)
  • White Framed Vinyl Windows
  • Fiberglass Exterior Doors
  • 26ga. Metal -roof /trim/soffit/fascia
  • 26ga. Metal Lap siding/trim (TruLog siding)
  • Overhead Door Openings: 1- 10×8 (by others)
  • Drafted Plans (includes- floor plan, roof plan, elevation, section, site plan)
  • Engineered