March 2026

One Structure. Unlimited Use.

Experience the difference of a structure engineered for real life.
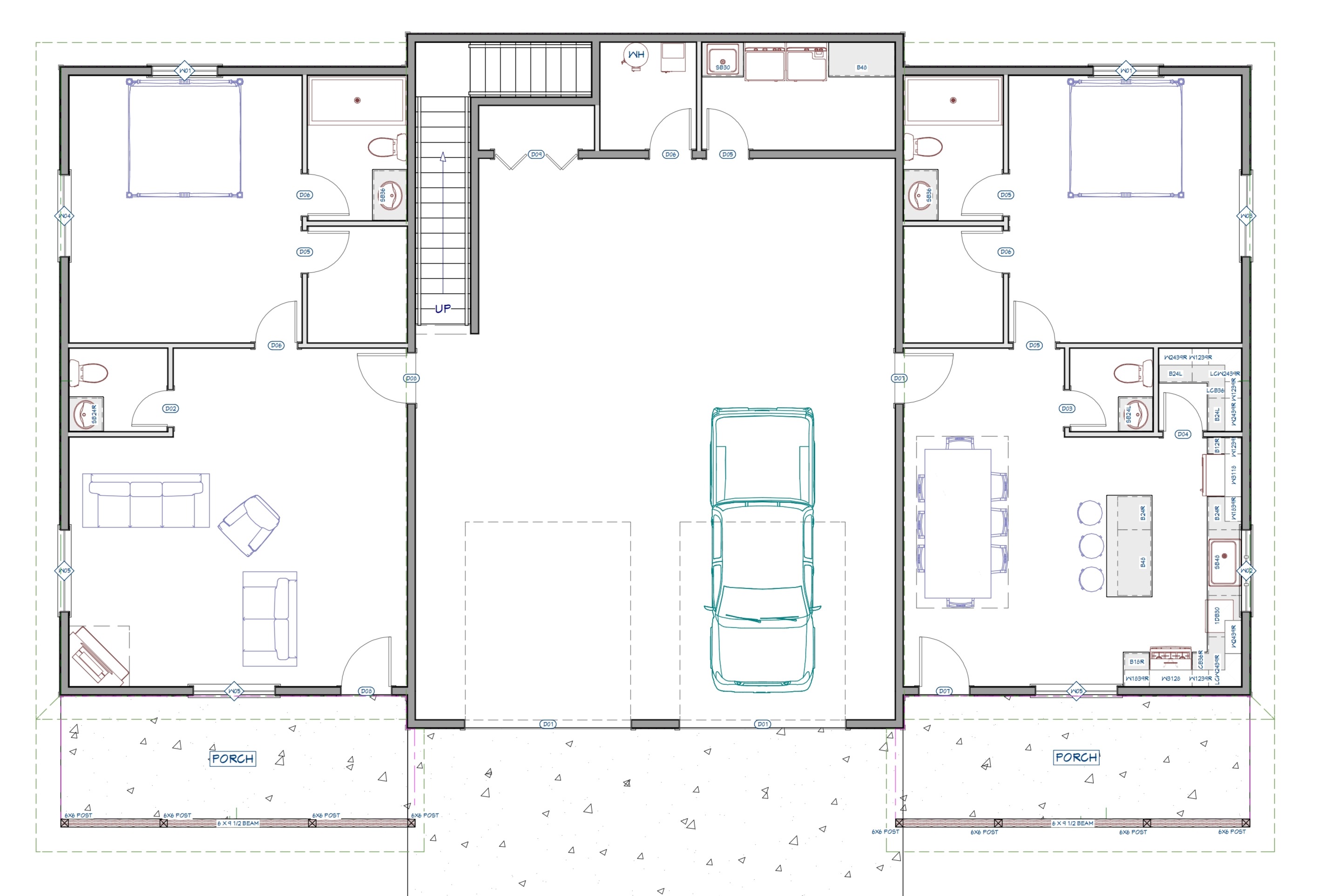
This multi‑use LOOK building features an mother-in-law suite on one side, a guest suite on the other, and a 1,260 sq ft shop built with STURDI‑LOK® Wall Panels for unmatched durability and efficiency.

With abundant storage above the shop, you gain room for tools, gear, and seasonal items—without expanding your footprint.

Designed smarter. Built stronger. Made for the way you live.

 

Image Gallery

Building Kit Inclusions:

  • 2×6 STURDI-LOK® Wall Panels (includes: headers, lag screws, vtp, cn, pre-drilled electrical)
  • Continuous Foam Insulation R6.5
  • Truss Package (includes: 5/8”osb, class A underlayment, hurricane clips, stabilizers, roll block, bracing)
  • Interior Studs
  • Metal -roof/trim/soffit/sidewalls
  • Post & Beam: patio (includes connectors)
  • Full set of plans (layout, floor plan, elevations, section, energy conservation, w/d takeoff, roof/truss plans, floor system design, 3d view, anchor layout)
  • Engineer Stamped Wall Panels
  • Powered by MiTek®
  • Windows/Doors available for Western Slope residents