November 2024

#L141012 Modern Barndominium w/ Open Concept!

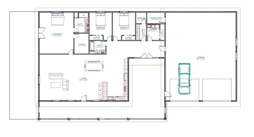
A modern look to your new barndo! With a 2,000sqft shop and just over 3,000sqft of living space, this 3bd/2ba has an open layout. It’s finished with an Antique Barnwood metal board & batten, black rock wainscot on the front and a black roof. To top it off, it includes exterior continuous insulation to get the most R-value out of your home! With this sleek design and finishes, you’re sure to have an outstanding barndominium.

 

Image Gallery

Building Kit Inclusions:

  • 2×6 STURDI-LOK® Wall Panels (includes: header, lag screws, vtp, cn)
  • 2’ O.C Trusses (includes: 5/8” osb sheathing, underlayment, ice/water shield, hurricane clips, stabilizers, roll block, bracing)
  • OX-IS structural continuous insulation ½” R3.0 (includes: moisture barrier, seam tape, flashing tape)
  • Rough Floor System-dropped (includes: pony wall material, TJI, ¾” osb t&g, subfloor adhesive)
  • DF Rough Sawn Post & Beam
  • Premium Vinyl Windows w/ black exterior frame
  • Fiberglass Exterior Doors
  • 26ga. Metal Delta Max -roof/trim/soffit/patio ceiling
  • 26ga. Metal Board & Batten walls/trim
  • Versetta Stone Wainscot
  • Overhead Door Openings: 2ea 16×12 (by others)
  • Full set of plans (layout, floor plan, elevations, section, energy conservation, w/d takeoff, roof/truss plans, floor system design, 3d view, anchor layout)